Bierkoffer
 Bierkühlzelle 
Biertheken
RW

Biertheken
Hagola

Biertheken
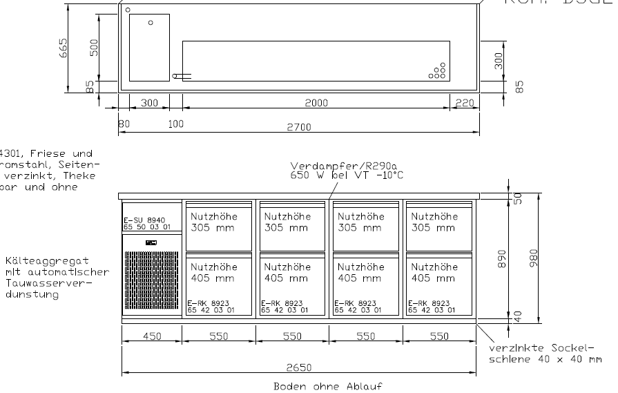
Nordcap

Bottums
up Bier

Cocktailmaschine

Cocktailtheke

Eiswürfel
Fassbiertheke

Fassbox 
Fasskühlschrank 
Flaschenkühltruhe

Flaschentruhe V2A
Gaswarngerät
Hausbar

Klapptheken

Kegliste

mobile
Theken
mobile
Cocktailbar
Schankanlagenverordnung
Schanktischabdeckung 
Weinkühltheke

Zapfsäule
Keramik
Zapfsäule
Metall 
Zapfsäulen
Trend 
Zeichnung
Hausbar
Bestellung auch unter
Shop.Rauschenbach
Pisco
Sour Variante
Ein frisches
Eiweiß
4 cl frisch gepreßter Zitronensaft
2 cl Rohrzuckersirup
6 cl Grand Pisco capel
alles in den Elektromixer geben. Ungefähr eine Tasse
zerstossenes Eis = Crusheis hinzufügen und auf
höchster Stufe ca. 1,5 Minuten mixen, bis eine cremige
Konsistenz erreicht ist und m it Limettenscheibe und
Cocktailkirsche garnieren .
Pisco
Sour Variante
4 cl Pisco ( Capel
Reservado 40 )
2 cl Limonensaft frisch gepresst
1/2 Teel. Zucker
1 Teel. ungeschlagenes Eiweiß
Im Shaker mit crushedice cremig mixen lassen und in
einem Glas mit Crustarand mit einem Limonenschnitzel
servieren.
|
Austattungsmerkmale:
Isolierte Kühlwanne für Crushed ice und Würfeleis Zutatenbord Früchtebord
Flaschentreppe Rieber
Cocktailtheken Rieber Basic Kühlung
Rieber
Basic Cocktail mit Kälte
Blender/Mixer-Station mit offenem Unterschrank.
Komplett. aus Edelstahl
Durch den abgesetzten Arbeitsbereich, wird vermieden,
dass Blender oder Mixer weit über die
Gesamtarbeitsfläche
überstehen und so die Sicht zum Kunden verhindern. Des
weiteren ergibt dies ein optimales Handling mit den
Geräten. Zwei handelsübliche Barmatten haben
hintereinander Platz und im darunterliegenden, offenen
Unterschrank können Leergutkisten oder Utensilienboxen
untergebracht werden..
- 2-teiliges Arbeitsmodul
Fronten, Abdeckung und Innenraum aus Edelstahl, der
Korpus aus verzinktem Stahlblech
Das Flügeltürabteil ist mit einem höhenverstellbarem
Rilsan-Rost ausgestattet, darüber eine Crushed –Eis /
Würfeleiswanne. DieWanne ist teilbar und
höhenverstellbar, ein Garnitur-Container hat dahinter
noch Platz.
Daneben ein Rollenauszugabteil (Nutzhöhe 405 mm) mit 3
Trennstäben, darüber bietet eine Flaschenwanne in der
Abdeckung Platz für mindestens 15 Flaschen. Sie enthält
ein höhenverstellbares CNS-Lochblech, 2-geteilt, zum
variablen Einsatz verschieden hoher Flaschen.
Tür und Rollenauszug sind abschließbar.
- Spülmodul
Kpl. aus Edelstahl
Flügeltüren-Unterschrank mit Beckenblende, darüber ein
Becken 300 x 500 x 300 mm eingehängt.
Das Becken wird ausgestattet mit einer Mischbatterie (Hochdruck)mit
Unterspülrohr, einer Ablaufgarnitur und
einem 1 ¼“Standrohr.
Optionen:
CN-Einsatzblech zum Einhängen von Kühlakkus in der
Flaschenwanne
Speedracks (s. Bild) für weitere Shaker oder Flaschen
Mixmobil à Fahrgestell zum mobilen Einsatz
Mischbatterie Niederdruck für Boiler-Anschluss
Abfallbehälter zum einhängen an die Flügeltüre unter dem
Becken (auch als Brandschutzeimer mit Klappe) |
Cocktailtheke Basic 1800 x 685 x 980 mm €
7.999,-- +MwSt
25 |
| |
Cocktailtheke Basic |
 |
95080202
Basis Mix Modul gekühlt links
 |
| Cocktailtheke |
Cocktailtheke Rieber |
 |
 |
| Cocktailtheke mit Becken und Schnittbrett |
Cocktailtheke |
 |
 |
| Cocktailtheke |
Cocktailtheke |
 |
Kühltheke Rieber 1 Becken 8 Züge mit
Schankdecke ab € 7.590,-- + mwst 2025 |
|
Maße: 1800 x 685 x 980 mm
Aufteilung von rechts nach links:
Der Unterbau
Das isolierte Arbeitsmodul
1150 mm lang, besteht aus einem Rollenauszugsabteil 550
mm und einer Flügeltür
600 mm lang mit Tragerost.
Die Tür und der Rollenauszug sind abschließbar.
Das Rollenauszugsabteil ist unten mit Auszug
(Nutzhöhe 405 mm) versehen, oben mit glatter
Blende und der Zusatzoption eine Abstellfläche
(Speedrack) einzuhängen, um zusätzlichen Platz
für Shaker oder Flaschen zu schaffen.
Es folgt eine Blender/Mixer-Station mit
tiefergesetzter Stellfläche 600 mm lang.
Diese ist zur besseren Bedienbarkeit zum
Barmixer hin geöffnet. Unterhalb der
Stellfläche befindet sich die Kühlmaschine,
230V 50Hz, Kälteleistung 330 W bei -10°VT.
Die Abdeckung
1800 x 685 x 50 mm, hat im Bereich der
Blender/Mixer-Station einen Ausschnitt für die
abgesenkte Stellfläche. In die Abdeckung ist
eine isolierte Wanne eingehangen
(ca. 535 x 185 x 300 mm). Der Innenraum der
Wanne ist variabel nutzbar und durch eine
Teilung z.B. gleichzeitig für Crush- und
Würfeleis einsetzbar. Hinter der Wanne kann
ein Garnitur-Container eingesetzt werden.
Daneben ist eine unisolierte Flaschenwanne
(ca. 415 x 465 x 200 mm) in die Abdeckung
integriert. Die Wanne wird passiv durch den
Verdampfer im Unterbau mit gekühlt.In der
Wanne befindet sich ein CN-Lochblech (2-geteilt).
|
Mixtheke
Barmixertheke Rieber 23
Grundmodell
ungekühlt
Rieber 1,75 x 0,66 x 0,86/0,98 m hoch
Arbeitsplatte
mit 2 Tropfmulden
netto
€
5.590,-- + MWST
Spülmodul
netto
€
1.390,-- +
MWST
Speedrack
netto
€
147,--
+ MWST
Arbeitsmodul gekühlt
netto
€
1.590,-- +
MWST
Garnitur Container
netto
€
115,-- MWST
Mülleimer
netto
€
160,-- +
MWST
Flaschentreppe
netto
€
410,-- MWst
Wasserarmatur w+k
netto
€
110,--
MWst
Rollensatz
netto
€ 450,-- + MWst
Holzverkleidung
3 Seiten mit Barbrett
netto € 1.480,--
+ MWst |
| Cocktailtheke |
Cocktailtheken |
|