|
1200x2400ob192195992019
Leichenkühlzellen im Rastermaß
1200x 2400x 2410 mm hoch

Viessmann Zelle mit Evo Cool Aggregat

Leichenkühlzelle
Leichenkühlkombination

Kühlzelle für 12 Verstorbene mit je 3 Türen übereinander
Höhe 2,30 m

Zelle für Leichenmulde
Referenzen:
Altenheim Bethlehem Tabea Wiehl
Friedhöfe
Gummersbach, Bergneustadt , Marienheide ,Lindlar, Denklingen
Friedhofskapellen
Schreibershof, Rothemühle , Müllenbach , Waldbröl , Seifen
Krankenhaus
Gummersbach |
Leichenkühlung Leichenkühlzelle
Leichenkühlzellen Kühlzelle Viessmann
mit 1 Türe für 1 Sarg oder 2 Särge
übereinander
Zeichnung für Leichenkühlzellen
PDF Viessmann
Pathologiezellen
Pathologie_Prospekt_deutsch.pdf
Lieferung als Bausatz einfach zu montieren
Montage selbst oder durch Viessmann
Leichenkühlzelle zum Einfahren
für 2 Särge
Viessmann mit
1 Türe 90/180 cm D.R.(
auch Türe bis 1,20m machbar MP € 50,-- + mwst
80 mm isoliert in
Version
compact 80
Edition Rauschenbach inkl
Kälteaggregat Viessmann Wand seitlich oder Rückseite
WMC 500 500
Watt -5 bis+ 15 C
ohne Lichtschalter ,ohne
LED Licht , Ausschnitt bauseits bei Wandaggregat MP € 180,--
+
mwst
Wandausschnitt
+ Verbindungskabel
) oder ( Deckenaggregat
SFM006P011-VI MP €
1.190,-- +
mwst + Höhe 550 mm plus
+ Verbindungskabel
MP € 150,--
+
mwst
) Mehrpreis Ecktürstock wie
Bild € 490,-- +
mwst
Türseite 1,50 x
2,40 x 2,04
m aussen o. Boden + Aggregat Wmc3 500
netto
€ 5.590,-- +
mwst 25
Türseite 1,50 x 2,40 x 2,35
m aussen o. Boden
+ Aggregat Wmc3 500
netto € 5.790,--
+ mwst
Türseite 1,50 x 2,40
x 2,11
m aussen m. Boden +
Aggregat Wmc3 500
netto €
5.990,--
+ mwst
Türseite 1,50 x 2,40
x 2,41
m
aussen m. Boden +
Aggregat Wmc3 500
netto € 6.390,--
+ mwst
Kide 1,14 x
2,34 x 2,03 o. Boden Türe 90/190 cm
. +
Decken Aggregat
FKM3 +300 mm
netto €
4.290,--
+ mwst
Kide 1,14 x 2,34 x 2,03 o. Boden
Türe 90/190 cm
. +
Huckepackaggregat
AP 50
netto €
4.490,--
+ mwst
Kide 1,14 x 2,34 x 2,03 o. Boden
Türe 90/190 cm
. +
Decken Aggregat
EMR1007M1X
+450 mm netto €
5.390,--
+ mwst
Cibin Zelle Boz508 Türseite 1,50 x
2,40 x 2,05
m mit Boden Türe 70x185 + Aggregat KA 13
netto
€ 4.190,-- +
mwst 26
 Türe aber nur 700 mm
 |
a) Mit Edelstahlboden
b) ohne Bodenelemente |
|
Viessmann Kühlzelle
Zellentyp: Tecto Standard Plus
Elementverbindung mit Nut/Feder und Exzenter-Spannschlössern
von innen zu betätigen (Innenmontage).
Die Stöße der Wandelemente sind mit Tecto-Überlappung und
damit besonders hygienisch.
Die Ecken der Zellenwände sind innen mit einem vollhygienischen
Radius ausgeführt.
Wandstärke: 80 mm starke Wärmedämmung der Zellenelemente,
Polyurethan-Hartschaum mit Cyclopentan geschäumt
Wärmedämmung: Schaumdichte = 40 kg/m³
U-Wert 0,25 W/m² K gemäß DIN EN 13165
Smart Protec®, weiß, antibakt.
Front aussen,Front innen,Rückwand aussen,Rückwand innen
Wand links aussen,Wand links innen,Wand rechts aussen
Wand rechts innen,Decke aussen,Decke innen,
|
Bodenausführung: KE11-Edelstahlboden (Werkstoff-Nr. 1.4301),
Kegelverpresst mit Längsschliff, an den Stoßstellen
spaltfrei, stufenlos unterlappt. Rutschfestigkeitsklasse R11.
zul. Radlast: 1000 N
Lastfläche: >4 cm²
Radwerkstoff: Gummirad
zul. Flächenlast: 30000 N/m²
|
|
Mit Edelstahlboden
Reine Tiefkühl-Leichenzelle -18 bis -20 C dauerhaft dann muss Pro Luke oder Türe eine Türrahmenheizung
sein und das
Aggregat regelt nur -15
bis -25 C mit
Isolierung 100 mm
netto € 8.290,-- + mwst Inkl
Beleuchtung oder Ausschnitt für Deckenaggregat
2025
1,50 x 2,40 x 2,15 m
mit Deckenaggregat Viessmann
SFM006P011-VI
für 2 Särge oder 4 Leichenmulden ( Regal ist dann
Mehrpreis )
|
|
Auffahrrampen 7 Grad
Rampe für Kühlzellen mit Edelstahlblech
Rampe 81 mm hoch 900x 700 mm
netto €
580,-- + mwst
2025
Rampe 81 mm hoch 900x 900 mm
netto €
640,-- + mwst
|
|
 |
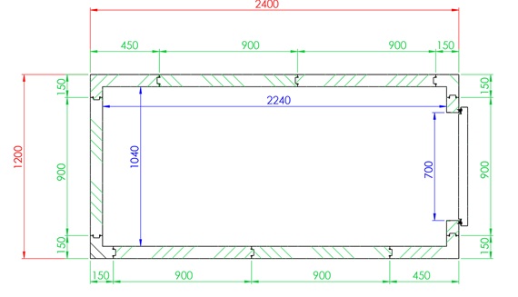
iessmann Kühlzelle 120-240-211 mit Boden
Tür kann auch in Din links gebaut werden
|
 |
lichte Türöffnung 900 mm Isolierung 80 mm |
|
|
|
 |
|
|
|
|
| |
|
|
|
|
Bestellung auch unter
Shop.Rauschenbach
|