Kältetechnik RAUSCHENBACH GmbH - damit Sie immer cool bleiben
     zurück Kühlmöbel      zurück Leichenkühlung Übersicht  
Leichenkühlzelle Viessmann für 2 Verstorbene      120 x 240 cm
Leichenkühlzelle Viessmann für 2 Verstorbene   150 x 240 cm
Leichenkühlzelle Viessmann für 4  Verstorbene   180 x 240 cm
Leichenkühlzelle Viessmann für 6  Verstorbene   330 x 270 cm
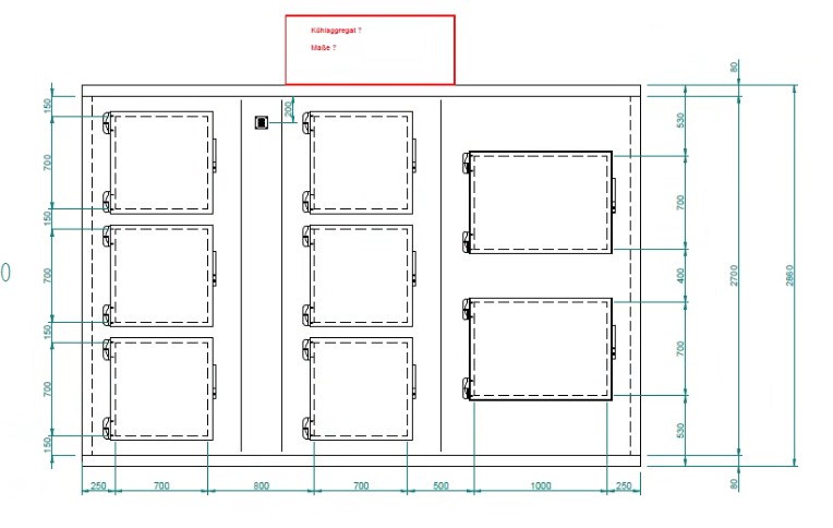
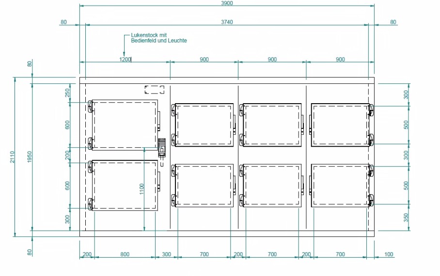
Leichenkühlzelle Viessmann für 8  Verstorbene   390 x 270 cm
Leichenkühlzelle Viessmann für  mehrere  Verstorbene im Sarg 
Leichenkühlzelle Viessmann für 6  Verstorbene Mit 6 Luken + Regal  240 x 240 cm
Leichenkühlzelle Viessmann für 6  Verstorbene + Regal + 2 Türen    270 x 270 cm  
Leichenkühlzelle Viessmann für 8  Verstorbene mit Regal + 2 Türen    270 x 270 cm  
Leichenkühlzelle Querbeschickung 2-3 Verstorbene  
Leichenkühlzelle mit 2 bis 8 kleinen Luken 2fachlukenanlage
Leichenkühlzelle mit 6  kleinen Luken
Leichenkühlschrank von 4 bis 8 Verstorbene aus Edelstahl
Leichenkühlzelle mit Türen 6 Verstorbenen 2 davon Adipös
Leichenkühlzelle mit Luken für 6  Verstorbene + 2 Adipöse
Leichenkühlzelle mit Luken für 8 -10 Verstorbene + Adipöse mit Regal Imagen Cámara mortuoria 
Leichenkühlzelle mit Luken für bis 80 Verstorbene + Adipöse mit Regal  
Katafalk  
Leichenwagen  
Leichenkühlung Zubehör Hubwagen Mulden Regal  
Zeichnungen + Pläne für Leichenzellen
 

Edelstahl Schrankanlage für 16 Verstorbene
body 4 big doors
Mobile Leichenkühlung Zubehör
Edelstahl Leichenzellen + Zubehör China

     

Bestellung auch unter

Shop.Rauschenbach

Internorga 2016 Viessmann lukenfenster 120 mm

 
 
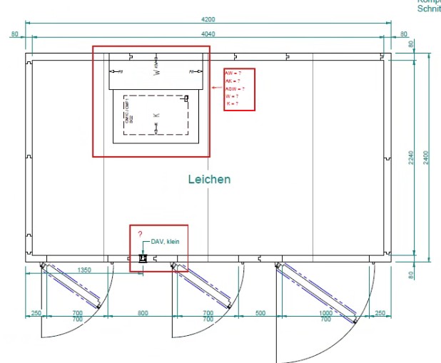
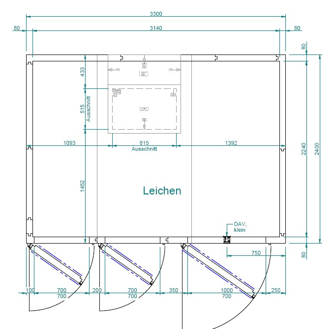
Leichenkühlzelle 80 mm isoliert für gesamt 8   Verstorbene  6 Normal + 2  Adipös Aussenbreite 3.300 mm

Deckenaggregat Viessmann CMC1 1300 = SFM016P011-VI 1300 W -5 bis + 230 V
in weiss
Leichenkühlzelle für Verstorbene  Leichenkühlzellen für Verstorbene  alle Varianten möglich 

in weiss in Edelstahl mit Boden ohne Boden 
Adipositas Leichenzelle
Tecto Kühl-/ Tiefkühlzelle 80 1
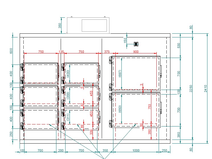
Aussenbreite 2400 mm
Aussenlänge 3300 mm
Aussenhöhe 2410 mm
Zellentyp: Tecto Standard Plus
Elementverbindung mit Nut/Feder und Exzenter-
Spannschlössern
von innen zu betätigen (Innenmontage).
Die Stöße der Wandelemente sind mit Tecto-Überlappung und
damit besonders hygienisch.
Die Ecken der Zellenwände sind innen mit einem
vollhygienischen Radius ausgeführt.
Wandstärke: 80 mm starke Wärmedämmung der
Zellenelemente,
Polyurethan-Hartschaum mit Cyclopentan geschäumt
Smart Protec®, weiß, antibakt.
zul. Radlast: 1600 N

in weiss

Kühlzellen-Luke 6 Luken mal 
Kühlzellen-Luke 2mal Lichte Breite 1000 mm
Lichte Höhe 400 mm Sonderbau
 
   
   
   
   
Viessmann Leichenkühlzelle Adipös Viessmann Leichenkühlzelle ädipös

Aufgrund der Luken für Adipöse Körper (Lichte Weite

800x700mm, entspricht Elementbreite 1200mm) wurde die Zelle in 3600mm Breite angeboten

Kühl-/Tiefkühlzelle 80 1 STK

Aussenbreite 3.600 mm

Aussenlänge 2.700 mm

Aussenhöhe 2.410 mm

Zellentyp: Tecto Standard Plus

Elementverbindung mit Nut/Feder und Exzenter-Spannschlössern

von innen zu betätigen (Innenmontage).

Die Stöße der Wandelemente sind mit Tecto-Überlappung und

damit besonders hygienisch.

Die Ecken der Zellenwände sind innen mit einem vollhygienischen Radius ausgeführt.

Wandstärke: 80 mm starke Wärmedämmung der Zellenelemente,

Polyurethan-Hartschaum mit Cyclopentan geschäumt

Wärmedämmung: Schaumdichte = 40 kg/m³

U-Wert 0,25 W/m² K gemäß DIN EN 13165

Smart Protec®, weiß, antibakt.

Front aussen,Front innen,Rückwand aussen,Rückwand innen

Wand links aussen,Wand links innen,Wand rechts aussen

Wand rechts innen,Decke aussen,Decke innen,Boden aussen

Bodenausführung: KR11-Edelstahlboden (Werkstoff-Nr. 1.4301),

Kreisverpresst mit Längsschliff, an den Stoßstellen

spaltfrei, stufenlos unterlappt. Rutschfestigkeitsklasse R11

zul. Radlast: 1600 N

Lastfläche: >4 cm²

Radwerkstoff: Gummirad

zul. Flächenlast: 30000 N/m²

Aussenbreite 3.600 mm

Aussenlänge 2.700 mm

Aussenhöhe 2.410 mm

 

Tür- / Lukenelement 80 3 STK

Kühlzellen-Luke

Lichte Breite 800 mm

Lichte Höhe 700 mm

Wandstärke: 80 mm starke Wärmedämmung.

 

 

Tür- / Lukenelement 80 6 STK

Kühlzellen-Luke

Lichte Breite 700 mm

Lichte Höhe 500 mm

Wandstärke: 80 mm starke Wärmedämmung.

 

Optional: Druckausgleichsventil

Optional: seitliche Begehungstüre  80 x 200 cm 

Zelle in weiss 9 Luken   € 10.950,-- + mwst 2024
Zelle in Edelstahl 9 Luken   € 14.790,-- + mwst 2024

3 Steckregalsystem für Mulden max für - 600 kg a  € 1.890,-- + mwst

1 Aggregat Huckepack WMC3 1000  € 2.190,-- + mwst 24

 

MortuarySolutions_9 Viessmann Edelstahl Kühlzelle 80 mm Isoliert für 9 Verstorbene  mit Edelstahlboden mit Led Leuchten   Aussen 4800 x 2400 x 2410 mm hoch mit 9  Luken  600 x 500 mm +3 mal Regal für max 9 Leichen
1 x Deckenaggregat  netto
€ 35.500,--  + mwst 25
 

Lieferung als Bausatz einfach zu montieren  

Montage selbst oder durch Viessmann

Viessmann Edelstahl Kühlzelle 80 mm Isoliert für 2 Normal Verstorbene + 2 Adipositas   mit Edelstahlboden
 
 

Leichenkühlzelle   

MortuarySolutions_9 

 kombizelle-3-fachfestigungsmateria

firmenlo.gif (1204 Byte)
firmenlo.gif (1204 Byte)
firmenlo.gif (1204 Byte)
firmenlo.gif (1204 Byte)
firmenlo.gif (1204 Byte)
firmenlo.gif (1204 Byte)
firmenlo.gif (1204 Byte)
firmenlo.gif (1204 Byte)
firmenlo.gif (1204 Byte)
firmenlo.gif (1204 Byte)
firmenlo.gif (1204 Byte)
firmenlo.gif (1204 Byte)
firmenlo.gif (1204 Byte)
firmenlo.gif (1204 Byte)
firmenlo.gif (1204 Byte)
firmenlo.gif (1204 Byte)
firmenlo.gif (1204 Byte)
firmenlo.gif (1204 Byte)
firmenlo.gif (1204 Byte)
firmenlo.gif (1204 Byte)
firmenlo.gif (1204 Byte)
firmenlo.gif (1204 Byte)
 

30.03.26 Copyright   Kaeltetechnik Rauschenbach GmbH  Phone +49 2261 94410  Impressum  Datenschutz   Angebote nur an Geschaeftskunden